BAGNOLS Sur Cèze :  Maison 3 chambres sur 420 m² de terrain

BAGNOLS Sur Cèze : Maison 3 chambres sur 420 m² de terrain

Retour aux offres

Pour plus d'informations, contactez votre conseiller :

Patrice OLLIER
06 14 74 38 78
Maisons Passion vous propose ce projet entièrement modulable sur la commune de Bagnols sur Cèze
Dans un cadre de verdure, quartier Aubian, Plusieurs surfaces de terrain sont disponibles.

Contrat de construction CCMI
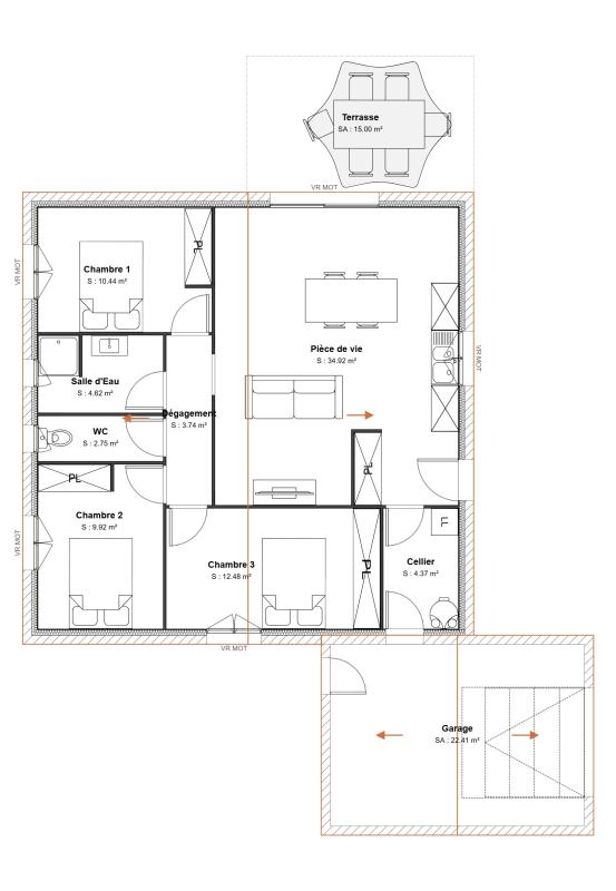
Maison de plain-pied, 3 chambres
Architecture contemporaine
Exposition Sud Ouest
Garage attenant
Personnalisation des finitions
Chauffage par Pompe à Chaleur air/air gainable
Volets roulants motorisés
Maison économe en énergie (RE 2020)
Accompagnement tout au long du projet

208 200 € comprenant Maison + Assurance Dommage Ouvrage + Terrain, hors Frais de notaire, cuisine et VRD

Investissement ou premier achat

Maisons Passion, constructeur CCMI indépendant, reconnu en Drôme Ardèche et Vaucluse. Spécialiste de la construction sur-mesure, votre projet est personnalisable. Respect des règles parasismiques, thermiques RE 2020 et soucieux du bien-être.

Devis gratuit

En accord avec notre partenaire foncier et sous réserve de disponibilité
Photos non contractuelles
Prix comprenant le terrain + la construction, hors frais de notaire, cuisine, et vrd

Pour plus de renseignements, contactez Patrice OLLIER au 06 14 74 38 78 - patrice.ollier@maisonspassion.com - www.instagram.com/maisonspassion - www.maisonspassion.com

A bientôt !

Caractéristiques :

Référence P12
Prix 208 200 €
Commune Bagnols-sur-Cèze (30200)
Surface habitable 83 m²

Contactez-nous


* Champ obligatoire

ALORS, ON LA RÉALISE QUAND VOTRE MAISON ?

Contactez-nous
Rendez-vous au Salon de l’Habitat de Montélimar !

Rendez-vous au Salon de l’Habitat de Montélimar !

Les 21 & 22 mars 2026 

En savoir plus