ALLAN : maison 4 chambres sur  1000 m² de terrain

ALLAN : maison 4 chambres sur 1000 m² de terrain

Retour aux offres

Pour plus d'informations, contactez votre conseiller :

Patrice OLLIER
06 14 74 38 78
Maisons Passion vous propose ce projet personnalisable sur la commune de ALLAN
Exceptionnel sur un terrain de plus de 1000 m² !!

Maison + Terrain + Garage + Terrasse

Contrat de construction CCMI
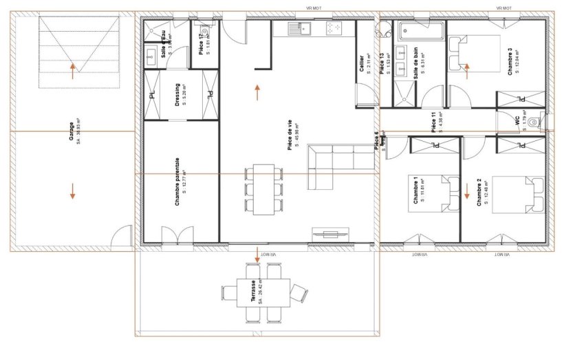
Maison de plain pied 4 chambres dont une chambre parentale de 20 m² avec salle d'eau et dressing
Pièce de vie de 46 m²
Terrasse couverte de 26 m² pour profiter de l'extérieur
Grand garage de 40 m²
Architecture contemporaine
Personnalisation des finitions
Chauffage par Pompe à Chaleur air/air gainable
Volets roulants motorisés
Terrain de 1000 m² au calme
Maison économe en énergie (RE 2020)
Accompagnement tout au long du projet

430 000 € comprenant Maison + Terrain + Assurance Dommage Ouvrage , hors Frais de notaire, cuisine et VRD

Maisons Passion, constructeur CCMI indépendant, reconnu en Drôme Ardèche et Vaucluse. Spécialiste de la construction sur-mesure, votre projet est personnalisable. Respect des règles parasismiques, thermiques RE 2020 et soucieux du bien-être.

Devis gratuit

En accord avec notre partenaire foncier et sous réserve de disponibilité
Photos non contractuelles
Prix comprenant le terrain + la construction, hors frais de notaire, cuisine, et VRD

Pour plus de renseignements, contactez Patrice OLLIER au 06 14 74 38 78 - patrice.ollier@maisonspassion.com - www.instagram.com/maisonspassion - www.maisonspassion.com

A bientôt !

Caractéristiques :

Référence P08
Prix 430 000 €
Commune Allan (26780)
Surface habitable 122 m²

Contactez-nous


* Champ obligatoire

ALORS, ON LA RÉALISE QUAND VOTRE MAISON ?

Contactez-nous
Rendez-vous au Salon de l’Habitat de Montélimar !

Rendez-vous au Salon de l’Habitat de Montélimar !

Les 21 & 22 mars 2026 

En savoir plus