đĄ Surface habitable et surface de plancher : ne pas les confondre
Lorsquâun projet de maison dĂ©marre, deux notions de surface reviennent trĂšs vite dans les Ă©changes : la surface habitable et la surface de plancher. Ces deux surfaces sont rĂ©glementaires, mais elles ne correspondent pas Ă la mĂȘme rĂ©alitĂ©. Comprendre la diffĂ©rence permet dâĂ©viter de nombreuses incomprĂ©hensions lors de la lecture des plans ou du permis de construire.
đ La surface habitable : la surface dans laquelle vous vivez
La surface habitable est dĂ©finie par le Code de la Construction et de lâHabitation. Elle correspond Ă la surface rĂ©ellement disponible pour vivre, aprĂšs dĂ©duction de tout ce qui « prend de lâĂ©paisseur ».
Ce qui est déduit de la surface habitable
- lâĂ©paisseur des murs et cloisons
- les coffres techniques et gaines
- les embrasures de portes et fenĂȘtres
- les escaliers
Elle comprend uniquement lâespace quâil reste quand la maison est terminĂ©e.
đCâest la surface qui reflĂšte lâespace rĂ©el pour meubler, circuler et vivre au quotidien.
Â
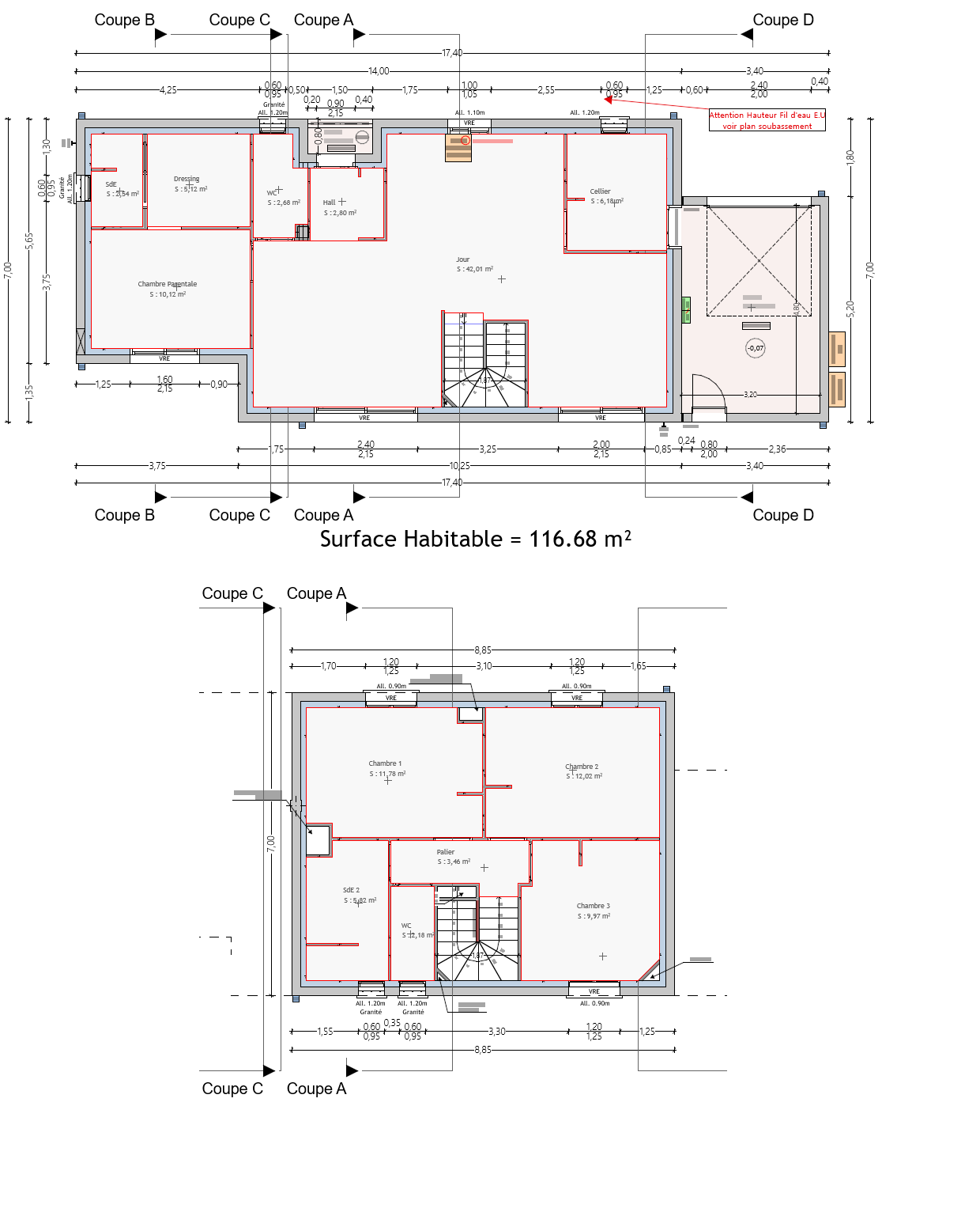
Cas d'une maison de plain-pied :
Â
Cas d'une maison à étage :
La surface de plancher : la surface administrative
La surface de plancher est celle utilisĂ©e pour le permis de construire. On la retrouve dans les CERFA et dans les rĂšgles dâurbanisme. Elle peut ĂȘtre plafonnĂ©e selon la zone du terrain et conditionne notamment lâobligation ou non de recourir Ă un architecte.
La surface de plancher est la somme des surfaces de tous les niveaux clos et couverts, mesurée au nu intérieur des murs de façades, avec une hauteur sous plafond supérieure à 1,80 m.
Ce qui est compté dans la surface de plancher
- lâĂ©paisseur des cloisons
- les placards
- les surfaces closes et couvertes, mĂȘme si elles ne sont pas forcĂ©ment perçues comme « habitables »
Ce qui est déduit de la surface de plancher
- les vides sur séjour
- les trĂ©mies dâescalier
- les surfaces dâune hauteur infĂ©rieure Ă 1,80 m
- les surfaces destinées au stationnement (garage)
Point trĂšs important : la surface de plancher comptabilise uniquement les surfaces closes ET couvertes.
Ne sont donc pas comptés :
- les terrasses, mĂȘme couvertes
- les porches
- les auvents
Cette surface est presque toujours plus grande que la surface habitable.
Pourquoi cela crée souvent de la confusion
Un permis peut indiquer une maison de 116 mÂČ de surface de plancher, alors que la maison fait en rĂ©alitĂ© 113 mÂČ habitables. Et le client ne comprend pas pourquoi.
- La surface de plancher englobe les cloisons et coffres techniques.
- La surface habitable correspond uniquement Ă lâespace rĂ©ellement vĂ©cu.
Dans une maison de plain-pied, lâĂ©cart est dĂ©jĂ visible. Dans une maison avec Ă©tage, lâĂ©cart est encore plus marquĂ©, surface habitable 117mÂČ et surface de plancher 122mÂČ
Â
Cas d'une maison de plain-pied :

Cas d'une maison à étage :
Ce que cela signifie concrĂštement pour votre projet
Ce nâest pas la surface de plancher qui dĂ©termine votre confort. Câest la surface habitable, et surtout la façon dont elle est pensĂ©e.
Deux maisons avec la mĂȘme surface de plancher peuvent offrir un confort totalement diffĂ©rent selon lâagencement intĂ©rieur. Câest pour cela que, chez Maisons Passion, nous concevons toujours les projets en partant de la surface rĂ©ellement vĂ©cue.
